
IMMEUBLE D’HABITATION
- Projet d’extension de la toiture, transformation des appartements, ravalement de la façade, Ouverture de porche d’entrée et
- Aménagement et création des appartements au RDC
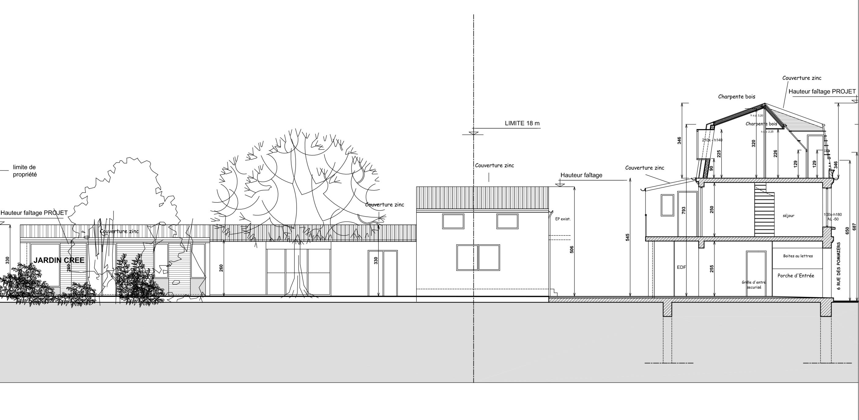
EXISTANT : Le terrain possède une surface de 575m² comporte un immeuble d’habitation constituée d’un sous-sol avec surface totale de 52 m², d’un rez de chaussée avec une surface totale de 382 m², un R+1 avec 158 m² surface totale et R+2 avec 75 m² surface totale.
Le RDC à un usage mixte habitation-commerce et entrepôts privés/hangars.
Une cour commune en arrière constitues 122 ² d’espaces verts pour la parcelledont 50 m² terre pleine.
PROJET :
Le projet consiste en :
- Ravalement de la façade, Ouverture de Porche d’entrée
- Construction, aménagement des logements.
- Création d’un jardin
- Création d’un logement F3 en duplex entre les deux volumes des toitures.
- Ouverture de Porche d’entrée avec continuité visuelle sur le jardin crée
- Réaménagement des anciens commerces en appartement
- Ravalement de la façade.
- Après la démolition des hangars Création d’un jardin et réaménagement d’un des hangars non démolies en logement F1 face au jardin crée.
- L’ensemble des réaménagements et construction va être réalisé en structure et ossature bois.














